厨房装修必看!光波炉vs微波炉选购指南:功能、安装、能耗全2厨房装修必看!光波炉vs微波炉选购指南:功能、安装、能耗全 一、厨房电器革命:光波炉与微波炉的定位差异 在现代化厨房装修中,集成化、功能复合化成为主流趋势,作为核心厨电的微波炉与光波炉,正经历着从”单功能设备”到”厨房空间规划要素”的蜕变。根据中国家电研究院数据,新建商品房厨房电器配置率已达89%,其中微波炉保...赞 (0)光影与木2026-03-16阅读(45)
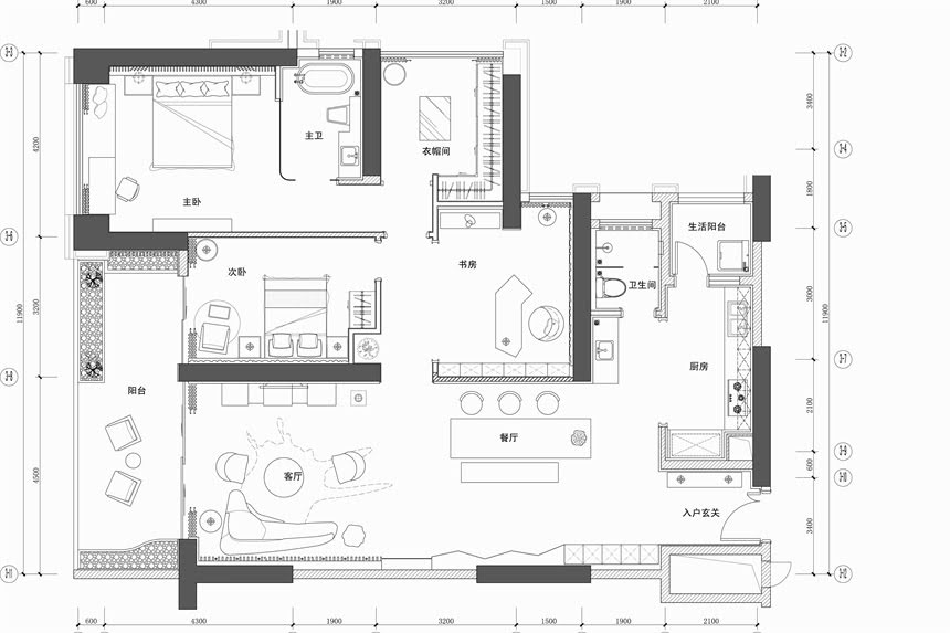
110㎡现代简约风装修全攻略:20万预算如何花出50万效果?附避坑指南3《110㎡现代简约风装修全攻略:20万预算如何花出50万效果?附避坑指南》 一、20万装修110㎡全流程拆解(附预算分配表) (一)核心数据 1. 房屋基本信息:三室两厅两卫,层高2.8m,南北通透 2. 总预算:20万元(含硬装+软装+家电) 3. 装修周期:135天(含验收) 4. 设计风格:现代简约+轻奢 (二)预算分配比例(单位:万元) | 项目 |...赞 (0)光影与木2026-03-16阅读(46)
济宁全屋水电改造专家:五大隐患避坑指南与五大省钱技巧全3济宁全屋水电改造专家:五大隐患避坑指南与五大省钱技巧全 一、水电改造决定装修成败:济宁家庭必读指南 在济宁地区,水电改造作为装修基础工程,直接影响未来10-20年居住品质。据济宁住建局统计数据显示,因水电施工不当导致的装修返工率高达37%,维修成本平均超原预算的45%。本文结合本地施工案例,系统水电改造全流程,帮助业主规避五大常见隐患,掌握五大省钱技巧。 二...赞 (0)光影与木2026-03-16阅读(51)
装修后吊顶生虫怎么办?5大防治技巧助你安心入住2装修后吊顶生虫怎么办?5大防治技巧助你安心入住 一、装修后吊顶生虫的常见类型及危害 1.1 纸质发霉类虫害 在北方干燥地区,吊顶内部因木材受潮产生的霉斑常吸引果蝇、家蛾等昆虫。某北京用户案例显示,吊顶龙骨接缝处发霉面积达3平方米,导致虫卵堆积,引发持续3个月的异味问题。 1.2 白蚁侵蚀类虫害 南方潮湿气候下,白蚁巢穴常隐藏于吊顶结构中。广州某小区统计,因吊...赞 (0)光影与木2026-03-16阅读(46)
欧派vs志邦:如何选对橱柜品牌?全攻略来了3欧派vs志邦:如何选对橱柜品牌?全攻略来了 一、开篇导语:橱柜选购的三大核心痛点 在的家居装修市场中,橱柜作为厨房空间的核心家具,其选购直接影响着厨房的功能性和美观度。据中国家居协会数据显示,消费者在选购橱柜时普遍存在三大困惑:品牌间的技术差异、设计风格的适配性、后期服务的保障性。其中,欧派橱柜与志邦橱柜作为行业双雄,连续五年占据品牌销量榜前两位,其市场占比...赞 (0)光影与木2026-03-16阅读(36)
意风家具档次:中高端定位,高性价比家居品牌,选购指南3意风家具档次:中高端定位,高性价比家居品牌,选购指南 在当代家居装修市场中,意风家具凭借其独特的北欧简约风格和时尚设计,逐渐成为消费者关注的焦点。但关于其具体档次定位,不同渠道的信息存在较大差异。本文将从品牌背景、产品定位、价格体系、材质工艺等维度,深入意风家具的真实档次水平,并针对市场环境,为消费者提供科学的选购建议。 一、品牌发展历程与市场定位 意风家具...赞 (0)光影与木2026-03-16阅读(55)
南宁上东专业装修公司推荐:全屋整装设计+施工一站式服务(附最新报价)2南宁上东专业装修公司推荐:全屋整装设计+施工一站式服务(附最新报价) 一、南宁上东本地装修公司优势 在南宁上东区域选择装修公司时,本地化服务商具有显著优势。根据广西建筑装饰协会数据显示,本地装修公司工程投诉率较外地企业低42%,主要得益于以下核心优势: 1. 本地化服务网络覆盖 上东片区现有持证装修企业28家,其中7家获得”广西消费者信赖品牌...赞 (0)光影与木2026-03-16阅读(43)
茅台专卖店装修设计全:高端品牌的空间美学与商业价值提升方案1茅台专卖店装修设计全:高端品牌的空间美学与商业价值提升方案 (:茅台专卖店装修设计、高端品牌空间设计、商业空间装修策略、品牌文化展示、高端零售空间规划) 在高端消费领域,茅台作为中国白酒的标杆品牌,其专卖店不仅是产品销售终端,更是品牌文化展示与价值传递的重要载体。,茅台专卖店装修设计逐渐成为商业空间设计领域的热门话题。本文将从品牌定位、设计策略、功能规划、材...赞 (0)光影与木2026-03-16阅读(51)
娄底新房装修公司全攻略:如何选到靠谱设计施工一体的专业团队3《娄底新房装修公司全攻略:如何选到靠谱设计施工一体的专业团队》 在娄底市购房装修已成为越来越多家庭的刚需选择,根据娄底市住建局数据显示,全市每年新建商品房交付量超5万套,其中90%业主选择委托专业装修公司。面对市场上众多声称”娄底最好的装修公司”的机构,本文将深度如何科学选择靠谱的装修团队,并详细解读娄底本土头部企业的服务优势。 一、...赞 (0)光影与木2026-03-16阅读(58)
业主自己装修全攻略:从规划到验收的12个关键步骤与避坑指南3业主自己装修全攻略:从规划到验收的12个关键步骤与避坑指南 一、业主自己装修的必要性及优势分析 房价持续上涨的背景下,越来越多购房者选择通过自行装修的方式降低成本。根据建筑装饰协会数据显示,自主装修家庭平均节省装修费用达35%-45%,但同时也存在15%的返工率。本文将系统业主自装全流程,帮助您规避常见误区。 二、装修前筹备阶段(约占全文20%) 1. 预算...赞 (0)光影与木2026-03-16阅读(39)