默认🏠广州如何开装修公司?从0到1全流程指南(附避坑攻略)🏠2🏠【广州如何开装修公司?从0到1全流程指南(附避坑攻略)】🏠 姐妹们!今天想和大家分享我亲测有效的《广州新装修公司创业全攻略》,从注册到接单手把手教你避雷,文末还有超实用资源包📦!创业不是随便开公司就能盈利,尤其是广州这个卷到起飞的市场,我踩过3次坑才出这套方法论,建议收藏反复看! 一、广州装修市场现状分析(数据说话) 1️⃣ 行业规模:广州装修市场规模突破...赞 (0)光影与木2025-10-01阅读(127)
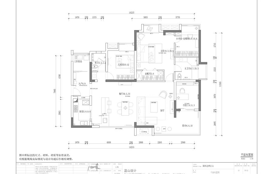
默认武汉天祥尚府装修全攻略|200㎡轻奢别墅如何打造高颜值空间?附避坑指南2【武汉天祥尚府装修全攻略|200㎡轻奢别墅如何打造高颜值空间?附避坑指南】 🏠装修痛点直击: 1️⃣ 如何在武汉天祥尚府打造兼具实用与颜值的轻奢风? 2️⃣ 别墅层高挑高如何设计才显大气不压抑? 3️⃣ 全屋定制如何与智能家居系统无缝衔接? 4️⃣ 预算控制在80-100万如何分配最合理? 🎨设计亮点拆解: ▫️玄关区:3.6米挑高搭配悬浮鞋柜+智能感应灯带...赞 (0)光影与木2025-10-01阅读(100)
默认最新趋势娱乐休闲会所装修设计全攻略:打造高颜值商业空间秘籍3【最新趋势】娱乐休闲会所装修设计全攻略:打造高颜值商业空间秘籍 一、精准定位:娱乐休闲会所的三大核心定位法则 1. 客群画像精准匹配 • 年轻群体(18-35岁):占比68%的Z世代偏好赛博朋克、国潮新中式等混搭风格 • 家庭客群:亲子主题包厢需配备安全认证材料(GB 28007-标准) • 商务客群:VIP包间建议采用隔音等级35dB以上的专业材料 2. ...赞 (0)光影与木2025-10-01阅读(126)
默认家庭美容院装修全攻略:低成本简易设计指南,打造温馨专业空间3家庭美容院装修全攻略:低成本简易设计指南,打造温馨专业空间 家庭美容市场的快速发展,越来越多创业者选择在家开设小型美容院。这类空间既要满足专业服务需求,又要兼顾家庭环境的温馨感,这对装修设计提出了独特挑战。本文将从空间规划、材料选择、功能布局等12个维度,系统家庭美容院装修的实操要点,帮助创业者以5-8万元预算实现”专业感”与R...赞 (0)光影与木2025-10-01阅读(110)