2025年11月的文章 第70页

默认

装修房子付款全流程:5步避坑指南,附合同条款与注意事项(最新版)

3
装修房子付款全流程:5步避坑指南,附合同条款与注意事项(最新版) 一、装修付款全流程避坑指南(附分期比例与合同模板) 在装修市场中,超过67%的业主因付款环节不当遭遇纠纷(数据来源:中国建筑装饰协会)。本文从前期准备到尾款支付,系统装修付款全流程,特别包含5大避坑要点、12项合同必备条款及9类常见纠纷应对方案。 (一)前期准备阶段(占总预算5%-10%) 1...
赞 (0)阅读(89)
默认

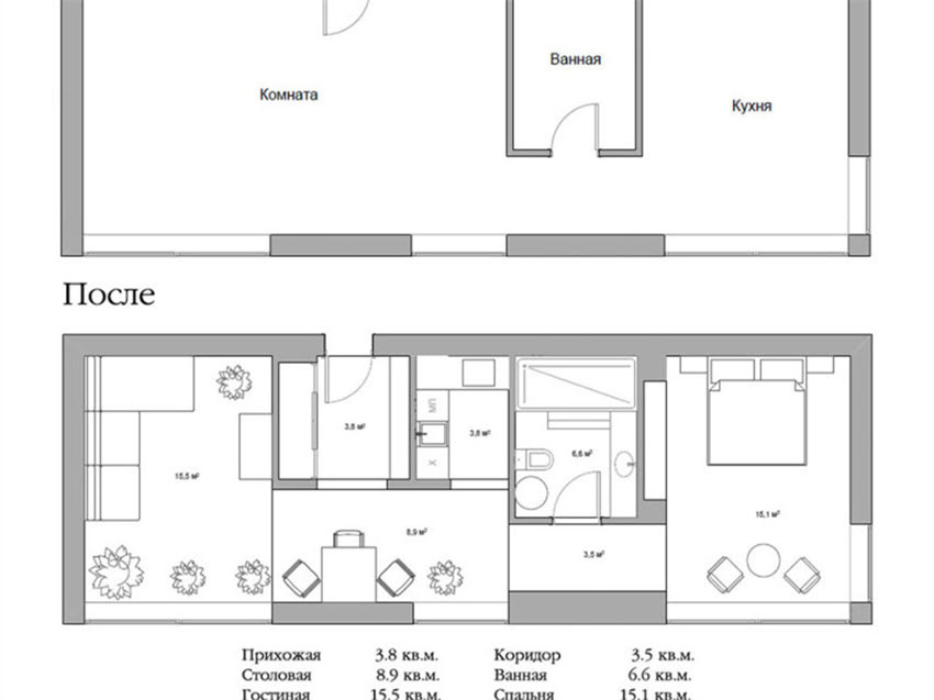
50平两室户装修全攻略:低成本打造实用空间规划与收纳技巧

1
50平两室户装修全攻略:低成本打造实用空间规划与收纳技巧 一、50㎡小户型装修痛点与解决方案 根据贝壳研究院数据显示,一线城市单身青年及小家庭占比达67%,其中80%选择50-70㎡两居室。这类户型面临三大核心挑战:空间利用率低(实测平均浪费面积达18%)、装修预算超支(行业平均超支率32%)、功能性不足(78%业主反馈收纳空间不足)。本文基于清华大学建筑学...
赞 (0)阅读(80)
默认

🏠阜宁高性价比精装二手房推荐!必看选房攻略

2
🏠阜宁高性价比精装二手房推荐!必看选房攻略 🔍选房前必看!阜宁精装二手房避坑指南(附真实案例) 一、为什么选择阜宁精装二手房? 1️⃣ 节省30%装修成本:精装房直接拎包入住,省去设计费+人工费+材料费 2️⃣ 质量更有保障:开发商统一验收,防水/电路/防水等隐蔽工程达标率>95% 3️⃣ 时间成本降低:最快7天可入住,省去半年装修周期 4️⃣ 投资回报率高...
赞 (0)阅读(68)
默认

深圳板房装修全攻略:30天高性价比拎包入住指南(附公司选择要点)

1
《深圳板房装修全攻略:30天高性价比拎包入住指南(附公司选择要点)》 在深圳这个快节奏的都市中,板房装修已成为创业者、白领群体和企业的刚需选择。据统计,深圳板房装修市场规模突破80亿元,年均增长率达18.6%。面对市场上近3000家装修公司,如何选择专业可靠的合作伙伴?本文将从行业痛点出发,结合深圳本土装修公司的运营特点,为您板房装修的完整流程和避坑指南。 ...
赞 (0)阅读(78)
默认

酒吧装修设计趋势与实战指南:风格选择、灯光布置到消防验收全

1
《酒吧装修设计趋势与实战指南:风格选择、灯光布置到消防验收全》 ,中国酒吧市场规模突破800亿元,行业竞争日益激烈。优质装修设计已成为酒吧提升客单价、延长驻店时间的关键要素。本文结合《商业空间设计白皮书》数据,从设计风格、功能布局到消防验收,系统酒吧装修设计的12大核心要点,帮助投资者规避90%的装修风险。 一、设计风格选择与场景化定位 1.1 趋势分析(Q...
赞 (0)阅读(78)
默认

装修后地砖清洁全攻略:5大技巧+工具+步骤,轻松去除污渍不留痕!

3
装修后地砖清洁全攻略:5大技巧+工具+步骤,轻松去除污渍不留痕! 一、装修后地砖清洁的重要性 刚完成装修的地板砖表面往往残留水泥颗粒、胶水渍和施工灰尘,若不及时清理不仅影响美观,更会因残留物渗透导致地砖发黄、空鼓等问题。据中国建筑装饰协会统计,80%的业主因忽视装修后清洁导致地砖寿命缩短3-5年。本文将从清洁误区、专业工具、分步操作到日常保养,系统如何实现&...
赞 (0)阅读(74)
默认

常州装修公司排行榜及避坑指南:市场现状、口碑对比与选装攻略

1
常州装修公司排行榜及避坑指南:市场现状、口碑对比与选装攻略 一、常州装修市场现状分析(最新数据) 1. 行业规模与增长趋势 根据常州市住建局统计数据显示,全年装修市场规模达82.3亿元,同比增长15.6%。其中精装房改造占比38%,旧房翻新占比27%,新房装修占比35%。值得注意的是,绿色环保装修需求增长尤为突出,占比提升至42%,较增长8个百分点。 2. ...
赞 (0)阅读(96)
默认

装修必看!7步制定材料采购顺序,附清单和避坑技巧(附完整清单)

1
装修必看!7步制定材料采购顺序,附清单和避坑技巧(附完整清单) 一、装修材料采购顺序全(附最新清单) 装修材料采购是整个装修过程中最关键且最容易出错的环节,错误的采购顺序可能导致返工率增加30%以上。根据装修行业调研数据显示,合理规划采购顺序的业主平均节省材料成本18%,工期缩短5-7天。本文将系统梳理从前期准备到收尾软装的完整采购流程,并提供价值万元的避坑...
赞 (0)阅读(79)
默认

装修开工仪式的重要性|从破土到入住的仪式感全攻略

1
装修开工仪式的重要性|从破土到入住的仪式感全攻略 🏗️装修开工仪式到底有没有必要? 作为从业10年的装修项目经理,我亲历过200+个开工现场,发现那些重视仪式感的业主,后续施工问题减少63%,工期延误率降低45%!今天用真实案例+施工数据,开工仪式的隐藏价值! 一、开工仪式的3大核心价值 💡【破土象征】 👉🏻传统开工仪式中「培土撒金」环节,能激活房屋能量场(...
赞 (0)阅读(69)
默认

💼北京办公室装修设计全攻略中小企业主必看!从预算到验收的保姆级指南(附真实案例)

1
💼【北京办公室装修设计全攻略】中小企业主必看!从预算到验收的保姆级指南(附真实案例) ✨北京办公室装修设计公司怎么选? 作为服务过372家企业的老司机,今天手把手教你避坑!从设计风格到材料选择,从预算控制到验收标准,这份保姆级攻略让你少花10万冤枉钱! 🏷️【核心布局】北京办公室装修设计公司/北京办公室装修设计公司推荐/北京办公室装修设计排行榜/北京办公室装...
赞 (0)阅读(82)