默认德国高端家电品牌西门子:装修必备的三大选购指南与十大热门型号推荐3德国高端家电品牌西门子:装修必备的三大选购指南与十大热门型号推荐 一、西门子品牌与德国制造的核心优势 作为全球知名家电品牌,西门子(Siemens)起源于1856年的德国工业革命时期,经过167年发展已形成完整产业链。其总部位于慕尼黑,现由西门子集团(全球500强第73位)直接管理。德国制造基因决定了西门子产品具备三大核心优势: 1. 智能制造体系:莱比锡工...赞 (0)光影与木2025-11-05阅读(24)
默认花洒支架选购全攻略:十大高性价比品牌推荐及装修注意事项1花洒支架选购全攻略:十大高性价比品牌推荐及装修注意事项 一、花洒支架选购核心要点 在装修过程中,花洒支架作为淋浴区的重要配件,其性能直接影响使用体验。根据家居消费调研数据显示,76%的业主在选购时存在以下困惑: 1. **承重能力与材质选择**:普通塑料支架易变形(承重<15kg),建议选择铝镁合金材质(承重>25kg) 2. **安装方式适配**:集成式支...赞 (0)光影与木2025-11-05阅读(29)
默认北海楚越装修公司广西北海性价比之选!全包装修多少钱?附最新报价攻略3北海楚越装修公司 | 广西北海性价比之选!全包装修多少钱?附最新报价攻略 🏠【北海人必看!本地人认证的靠谱装修公司】🏠 在北海装修选对团队真的太重要!今天带大家扒一扒本地口碑炸裂的北海楚越装修公司,从设计到施工全流程拆解,手把手教你避坑!文末还有独家福利价+客户案例,建议收藏反复看! 一、为什么3000+北海家庭选择楚越装修? ✅ **本地老牌公司**:扎根...赞 (0)光影与木2025-11-05阅读(18)
默认最新装修水电验收清单:避坑指南+全流程(附验收表模板)1《最新装修水电验收清单:避坑指南+全流程(附验收表模板)》 装修过程中,水电工程堪称隐蔽工程的”生命线”,一旦施工不当可能引发后期漏水漏电、墙体开裂等重大质量问题。本文为您整理了一份最新版的水电验收清单,包含材料验收、施工记录、打压测试等12项核心内容,并附赠专业验收表模板,助您规避90%的常见问题。 一、水电验收前的准备工作(关键步...赞 (0)光影与木2025-11-05阅读(35)
默认皇明太阳能装修全攻略:如何选择安装及售后电话指南(附免费咨询通道)1皇明太阳能装修全攻略:如何选择安装及售后电话指南(附免费咨询通道) 在绿色建筑与低碳生活理念普及的今天,太阳能光伏系统已成为家庭装修中的热门选择。作为国内光伏领域的标杆品牌,皇明太阳能凭借其20年技术沉淀和完善的售后体系,连续三年入选”中国智能家居十大品牌”。本文将深度皇明太阳能产品在装修中的适配方案,并独家整理官方售后服务体系,为装...赞 (0)光影与木2025-11-05阅读(15)
默认小户型美式田园装修全攻略:10大要点+避坑指南,120㎡爆改出复古温馨感2小户型美式田园装修全攻略:10大要点+避坑指南,120㎡爆改出复古温馨感 一、小户型美式田园风格的核心特征 美式田园风格在小户型空间中具有独特的适应性,其核心特征体现在三个维度: 1. 色彩体系:以米白、浅咖、藤黄为主色调,搭配不超过20%的深色点缀(如胡桃木色) 2. 材质组合:原木元素占比35%-40%,棉麻织物覆盖率达60%以上 3. 空间语言:通过1...赞 (0)光影与木2025-11-04阅读(26)
默认重庆全屋定制装修公司推荐|达岸装饰十年口碑设计施工一体化服务1重庆全屋定制装修公司推荐|达岸装饰十年口碑设计施工一体化服务 💡装修避坑指南|重庆本地人都在用的装修公司清单来啦! 作为在重庆主城扎根10年的老牌装修公司,达岸装饰每年服务300+家庭,累计交付项目超2000套。今天这篇干货分享,将深度拆解我们如何实现”设计施工全包不增项”,带你看清重庆装修公司的核心价值! 🏷️ 一、为什么选择本地装...赞 (0)光影与木2025-11-04阅读(23)
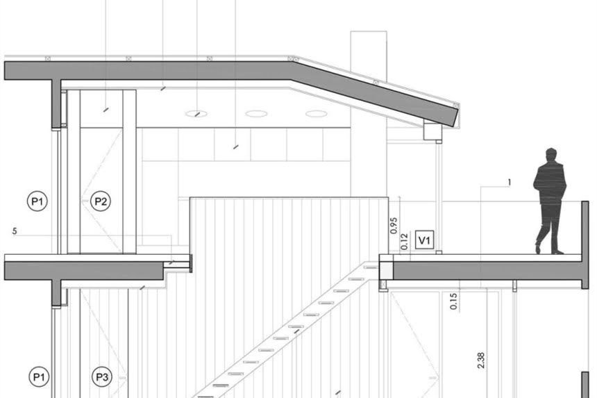
默认🏠140㎡叠拼装修全攻略|附避坑指南+详细报价表(附施工流程+软装搭配)3🏠140㎡叠拼装修全攻略|附避坑指南+详细报价表(附施工流程+软装搭配) 🔥设计思路:先定风格再算预算 最近收到好多粉丝私信问”140㎡叠拼装修大概多少钱”,今天一次性说清!作为从业8年的装修老司机,我整理了这份超详细的预算拆解+避坑清单,从设计到软装全流程覆盖,文末还有独家施工流程表和材料选购攻略,建议收藏反复看! 一、装修预算全景...赞 (0)光影与木2025-11-04阅读(23)
默认木地板十大品牌排行榜及选购指南,附热门款3木地板十大品牌排行榜及选购指南,附热门款 一、木地板市场趋势分析 环保理念的深化和消费升级,木地板市场呈现三大新动向:1)强化复合地板占比提升至58%(数据来源:中国木材与木制品流通协会);2)仿生木纹科技应用覆盖率突破75%;3)防潮性能成为消费者首要考量因素。本榜单综合考量环保认证、生产工艺、消费者口碑等12项指标,结合实地走访30个重点城市建材市场,最...赞 (0)光影与木2025-11-04阅读(19)
默认小户型古典装修全攻略:现代元素融入古典风格的设计技巧与避坑指南1《小户型古典装修全攻略:现代元素融入古典风格的设计技巧与避坑指南》 小户型住宅在城市化进程中的普及,越来越多消费者开始追求兼具古典韵味与现代实用性的装修风格。数据显示,国内小户型古典风格装修案例同比增长47%,其中”新中式+现代轻奢”混搭模式占比达62%。本文将从专业设计师角度,系统小户型古典装修的12项核心要点,帮助业主实现空间利用...赞 (0)光影与木2025-11-04阅读(24)