公租房装修全攻略|避坑指南+省钱技巧+合法改造秘籍✨1公租房装修全攻略|避坑指南+省钱技巧+合法改造秘籍✨ 🏠公租房到底要不要装修?看完这篇你就懂了! 👉🏻作为帮300+租客成功改造出租屋的装修博主,今天手把手教你: ✅公租房装修的合法改造边界 ✅3天速成装修的极简方案 ✅10万内打造网红出租屋的秘诀 📌装修必要性深度 1️⃣原始公租房现状(真实案例对比) ▫️未装修:平均租金低15%-20%(但空置期长) ▫...赞 (0)光影与木2026-01-20阅读(11)
湖口装修公司推荐榜单:15家口碑品牌全,附避坑指南与选材攻略1【湖口装修公司推荐榜单:15家口碑品牌全,附避坑指南与选材攻略】 在湖口县装修新房或旧房改造,选择一家靠谱的装修公司是确保工程质量和预算安全的核心环节。本文基于最新市场调研数据,结合本地业主真实口碑,从资质认证、施工工艺、售后服务等12个维度进行深度评测,整理出湖口地区综合实力TOP15的装修公司榜单,并附赠价值万元的避坑清单和选材避雷指南。 一、湖口装修公...赞 (0)光影与木2026-01-20阅读(7)
🔥装修避坑指南:10大必看准备工作,看完省下5万块!1🔥装修避坑指南:10大必看准备工作,看完省下5万块! 🏠装修前准备不充分=花冤枉钱+踩雷无数!作为操盘过127个装修项目的资深设计师,今天手把手教你如何用3周时间做好万全准备,避开90%的装修雷区! 💰【预算篇:别让装修公司坑你!】 ✅预算表必须包含这些隐藏项: – 水电改造(至少留3000元) – 管道升级(建议单独列项) R...赞 (0)光影与木2026-01-20阅读(5)
深圳沙井专业装修公司推荐指南:全流程服务+透明报价+设计案例1《深圳沙井专业装修公司推荐指南:全流程服务+透明报价+设计案例》 在深圳沙井区域寻找靠谱装修公司时,业主最关心的三个核心问题始终是:如何挑选专业团队、装修报价是否合理、设计效果能否落地。本文深度沙井地区头部装修公司的服务模式,结合市场最新动态,为业主提供一份包含公司对比、避坑指南、案例拆解的完整选购手册。 一、沙井区域装修公司市场格局分析(最新数据) 根据深...赞 (0)光影与木2026-01-20阅读(8)
装修拉门安装全流程:最佳时间+顺序+注意事项(附避坑指南)3装修拉门安装全流程:最佳时间+顺序+注意事项(附避坑指南) 一、装修拉门安装的关键节点与时间规划 1. 装修拉门安装的黄金窗口期 装修拉门作为家居空间的功能性装饰构件,其安装时机直接影响整体装修效果。根据行业施工规范,拉门安装需满足以下条件: – 墙体基层处理完成(含水率≤15%) – 地面找平层完全干燥(含水率≤8%) –...赞 (0)光影与木2026-01-20阅读(3)
北京蜗居装修公司-全包装修一站式服务-专业设计施工团队(北京老破小翻新精装房改造)3北京蜗居装修公司-全包装修一站式服务-专业设计施工团队(北京老破小翻新/精装房改造) 一、北京蜗居装修公司:老城区改造的专家团队 北京蜗居装修公司深耕首都装修市场12年,专注服务东城、西城、朝阳等核心城区的二手房改造项目。公司拥有200+专业设计师团队和持证施工班组,累计完成老破小翻新案例超3000个,其中单年完成东城区胡同改造项目47个,成为北京老城区装修...赞 (0)光影与木2026-01-20阅读(5)
装修后三个月甲醛超标?权威除醛指南与科学检测方法全2装修后三个月甲醛超标?权威除醛指南与科学检测方法全 一、装修后甲醛超标危害:为何三个月仍是高危期? (1)甲醛释放特性分析 根据中国环境科学学会最新研究,甲醛释放周期可达3-15年。装修材料中的脲醛树脂、酚醛树脂等材料在温度升高(>20℃)和湿度变化(>70%RH)时,会持续释放甲醛。实测数据显示,80%的新装住宅在入住后3个月内甲醛浓度仍高于国家标准3倍以...赞 (0)光影与木2026-01-20阅读(7)
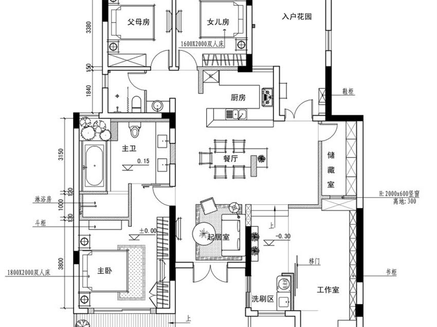
30平米小户型酒店式公寓装修全攻略:低成本高性价比设计+实用技巧3【30平米小户型酒店式公寓装修全攻略:低成本高性价比设计+实用技巧】 一、30平米小户型装修核心设计要点 1. 空间规划黄金比例 根据《住宅设计规范》GB50096-,30㎡住宅功能分区需满足”一厅两卧一厨一卫”的最小居住标准。建议采用L型布局:入口处设置1.2m宽鞋柜+换鞋凳组合,过渡到3.6m×3.0m开放式客餐厅,再延伸出1.8...赞 (0)光影与木2026-01-20阅读(6)
🏠装修房屋漏水5大原因+7步解决法|附不同阶段防漏攻略1🏠装修房屋漏水5大原因+7步解决法|附不同阶段防漏攻略 💧【装修必看】90%业主踩过的漏水雷区!从毛坯到完工全攻略 装修完新家最怕什么?除了甲醛超标,漏水 definitely 是TOP1的噩梦!上周闺蜜刚经历天花板漏水,不仅砸坏刚买的家具,连墙面都要重做,损失上万元不说,还影响了整个装修进度。今天整理了装修全流程的漏水解决方案,从设计到验收的每个环节都要注...赞 (0)光影与木2026-01-20阅读(3)
399元㎡全包套餐最省钱装修方案!北京上海广州深圳装修公司哪家靠谱?附免费报价对比表2【399元/㎡全包套餐】最省钱装修方案!北京/上海/广州/深圳装修公司哪家靠谱?附免费报价对比表 装修市场迎来全新变革,据中国建筑装饰协会最新数据显示,全国装修均价已突破800元/㎡,但仍有超60%消费者在300-500元/㎡区间寻找优质套餐。本文深度”399元/㎡全包套餐”的隐藏价值,对比北上广深头部装修公司服务差异,并提供可验证的...赞 (0)光影与木2026-01-20阅读(4)