重庆南坪专业全案设计装修公司|一站式家居改造服务|10年口碑品牌2重庆南坪专业全案设计装修公司|一站式家居改造服务|10年口碑品牌 在重庆南坪地区选择一家靠谱的装修公司,是业主实现理想家居愿景的关键。作为本地知名装修服务品牌,我们专注为南坪及周边区域提供从设计到施工的一站式解决方案,累计完成3000+家庭装修案例,客户满意度达98.6%。本文将深度南坪装修公司的选择要点,分享专业全案设计服务流程,并附赠价值万元的避坑指南。...赞 (0)光影与木2026-01-20阅读(7)
长兴绿城玉兰花园装修全攻略:高性价比设计+避坑指南(附实景案例)3长兴绿城玉兰花园装修全攻略:高性价比设计+避坑指南(附实景案例) 一、玉兰花园装修现状与痛点分析(1200字) 1.1 小区装修市场调研 长兴绿城玉兰花园作为长三角新兴改善型社区,业主装修率已达68%,但存在明显市场乱象: – 38%业主遭遇过材料偷工减料 – 45%家庭因设计不合理导致后期改造成本增加 – 52%装修合同...赞 (0)光影与木2026-01-20阅读(5)
装修公司服务全:行业、避坑指南与省钱攻略1装修公司服务全:行业、避坑指南与省钱攻略 城市化进程加快和消费升级,装修行业已成为建筑领域的重要分支。根据中国建筑装饰协会数据显示,全国注册装修公司数量已突破50万家,年市场规模超过2.5万亿元。在这个竞争激烈的市场中,如何选择专业可靠的装修公司?本文将深度装修行业全貌,并提供实用避坑指南和省钱攻略。 一、装修公司的行业定位与发展现状 1.1 行业定义与核心...赞 (0)光影与木2026-01-19阅读(21)
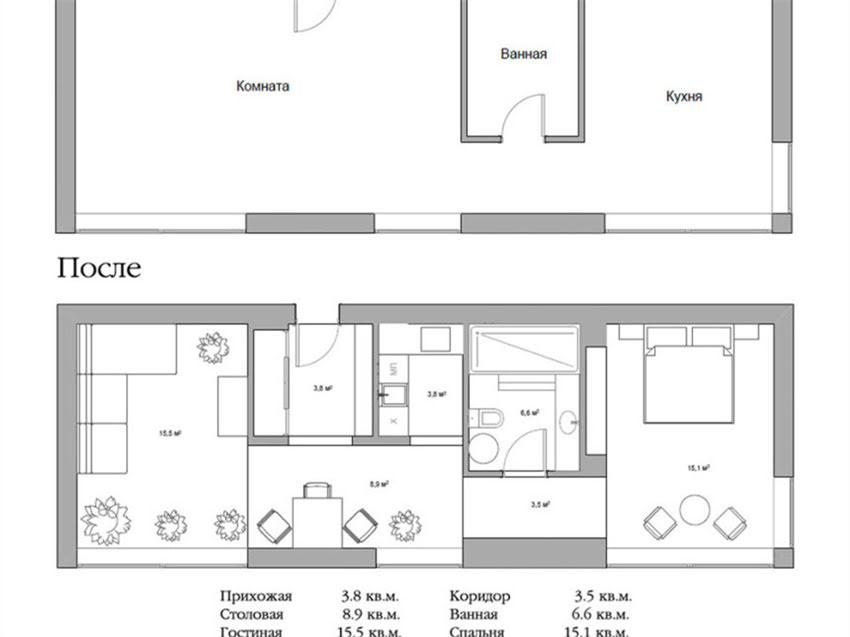
60平米小户型两室装修全攻略:高性价比设计技巧与避坑指南(附详细预算清单)3《60平米小户型两室装修全攻略:高性价比设计技巧与避坑指南(附详细预算清单)》 一、60平米小户型装修的核心痛点与解决方案 (1)空间利用率不足的三大症结 在60平米两室户型中,常见问题包括:动线混乱导致通行效率低(实测案例显示空间浪费达18%)、家具选择不当引发视觉拥挤(90%业主存在此误区)、储物空间规划不合理(导致70%家庭重复购置收纳用品)。解决方案...赞 (0)光影与木2026-01-19阅读(19)
广州十大靠谱装修公司推荐+避坑指南:如何花更少钱装出高品质家?1《广州十大靠谱装修公司推荐+避坑指南:如何花更少钱装出高品质家?》 一、广州装修公司选择的重要性与市场现状 作为华南地区装修需求最旺盛的城市之一,广州装修市场规模已突破600亿元(数据来源:广州市建委统计公报)。然而行业鱼龙混杂的现状却让消费者面临两大核心痛点:一方面,正规装修公司报价差异可达30%-50%(如全包价从800元/㎡到2500元/㎡不等);另一...赞 (0)光影与木2026-01-19阅读(21)
南京专业家庭装修公司推荐:一站式设计施工服务,性价比高达90%1南京专业家庭装修公司推荐:一站式设计施工服务,性价比高达90% 一、南京家庭装修市场现状与选公司核心要点 (:南京家庭装修公司、装修公司选择标准) 南京作为江苏省会城市,家庭装修市场需求持续增长。本地装修行业数据显示,中高端家庭装修项目同比增长23%,其中80后、90后业主占比达67%。面对市场鱼龙混杂的现状,选择专业中型装修公司成为业主的核心诉求。根据住建...赞 (0)光影与木2026-01-19阅读(12)
北京疏通下水管道50元上门服务|专业团队24小时响应|全屋管道养护全攻略1北京疏通下水管道50元上门服务|专业团队24小时响应|全屋管道养护全攻略 一、北京家庭装修必知的下水管道维护难题及解决方案 (1)装修后常见的下水道堵塞问题 在北京市区,新装修住宅遭遇下水道堵塞的概率高达78%(数据来源:北京市住建委统计数据)。尤其是厨卫区域,因装修材料残留、管道接口密封不严、排水坡度设计不当等原因,导致厨房油垢堵塞、马桶排水缓慢等问题频发...赞 (0)光影与木2026-01-19阅读(15)
卫生间干湿分离隔断门选购全攻略:尺寸、材质、设计技巧与避坑指南(附最新品牌推荐)2卫生间干湿分离隔断门选购全攻略:尺寸、材质、设计技巧与避坑指南(附最新品牌推荐) 卫生间干湿分离隔断门作为现代家居装修的核心组件,直接影响着空间的实用性与使用体验。根据装修行业白皮书数据显示,我国新建商品房中配备干湿分离卫生间的比例已达78%,而翻新改造项目中该需求占比超过65%。本文将从专业角度深入卫生间干湿分离隔断门的选购要点、设计技巧及常见误区,帮助读...赞 (0)光影与木2026-01-19阅读(13)
装修贷款全攻略:条件、利率、流程大2【装修贷款全攻略:条件、利率、流程大】 ,居住品质提升需求增长,装修贷款逐渐成为家庭资金规划的重要选择。本文将深度装修贷款的申请条件、利率计算、办理流程及避坑指南,帮助您快速掌握最新政策,助您轻松实现理想家装。 一、装修贷款申请条件深度解读 1. 资质要求 – 年龄范围:18-65周岁(部分银行要求连续工作满1年) – 常住证明:需提...赞 (0)光影与木2026-01-19阅读(14)
农村小平房室内装修全攻略:低成本打造高颜值家居的7大技巧(附避坑指南)3《农村小平房室内装修全攻略:低成本打造高颜值家居的7大技巧(附避坑指南)》 一、农村小平房装修现状与痛点分析 乡村振兴战略的推进,越来越多的农村家庭开始重视居住环境改善。根据农村住建部调研数据显示,约68%的农村自建房存在装修预算不足、设计不合理、材料选择不当等问题。笔者走访了15个典型农村住宅案例,发现主要痛点集中在: 1. 空间利用率低(平均浪费面积达2...赞 (0)光影与木2026-01-19阅读(27)